2.5 Zi-Wohnung - EG
Eckdaten
Adresse
Landstrasse 386
9495 Triesen
9495 Triesen
Referenz-Nr.
1105
Zimmer
2,5
Wohnfläche
52 m²
Verfügbarkeit
ab 01.03.2026
Preise pro Monat
Bruttomiete
CHF 1'200.00
Nettomiete
CHF 1'000.00
Nebenkosten
CHF 200.00 (akonto)
Miete Garage
CHF 110.00
Beschreibung
Diese gemütliche 2.5-Zimmer-Wohnung befindet sich in attraktiver Lage am Ortseingang von Triesen. In unmittelbarer Nähe laden kleine Naherholungsgebiete zu Spaziergängen oder sportlichen Aktivitäten in der freien Natur ein. Einkaufsmöglichkeiten, Restaurants und weitere Infrastruktur sind in wenigen Minuten erreichbar. Auch die Anbindung an den öffentlichen Verkehr ist ideal – die nächste Bushaltestelle liegt nur rund 100 Meter entfernt.
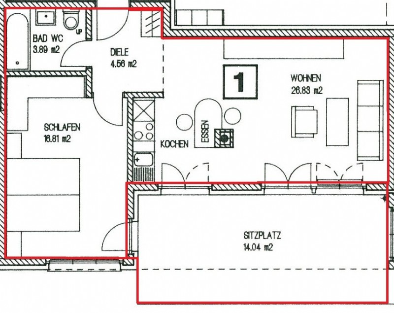
Beim Betreten der Wohnung empfängt Sie ein einladender Eingangsbereich mit praktischer Garderobe. Rechts befindet sich das helle Badezimmer, während das grosszügige Schlafzimmer mit hochwertigem Laminatboden überzeugt. Der offene Wohn- und Essbereich mit angrenzender Küche besticht durch raumhohe Fenster, die für viel Tageslicht und ein angenehmes Wohngefühl sorgen. Vom Wohnbereich aus gelangen Sie auf den überdachten Sitzplatz, der zum Verweilen und Entspannen einlädt.
Ausstattung:
Wenn Sie mehr über dieses Objekt erfahren möchten, nehmen Sie unverbindlich Kontakt mit uns auf. Wir freuen uns auf Sie.
Beim Betreten der Wohnung empfängt Sie ein einladender Eingangsbereich mit praktischer Garderobe. Rechts befindet sich das helle Badezimmer, während das grosszügige Schlafzimmer mit hochwertigem Laminatboden überzeugt. Der offene Wohn- und Essbereich mit angrenzender Küche besticht durch raumhohe Fenster, die für viel Tageslicht und ein angenehmes Wohngefühl sorgen. Vom Wohnbereich aus gelangen Sie auf den überdachten Sitzplatz, der zum Verweilen und Entspannen einlädt.
Ausstattung:
- Offener Wohn- und Essbereich
- Helle Küchenzeile (ohne Geschirrspüler)
- Schlafzimmer und Wohnräume mit Laminatboden
- Badezimmer mit hellen und dunklen Platten
- Überdachter Sitzplatz mit Blick ins Grüne
- Gemeinschaftliche Waschküche im Untergeschoss
- Lift im Haus vorhanden
- Eigenes Kellerabteil
Wenn Sie mehr über dieses Objekt erfahren möchten, nehmen Sie unverbindlich Kontakt mit uns auf. Wir freuen uns auf Sie.
Detaillierte Informationen
Bodenbeläge
Laminat & Steinböden
Weitere Räume
Kellerabteil
Heizung
Gas-Heizung
Lift
Gartensitzplatz
Umgebung
Öff. Verkehr
ca. 100 m
Besichtigungskontakt
Ing. Bau AG · Kompetenz in ImmobilienT +423 375 80 80
E vermietung@ingbau.li
Anbieter
Ing. Bau AG · Kompetenz in ImmobilienRätikonstrasse 13
9490 Vaduz
T +423 375 80 80 (Geschäft)
vermietung@ingbau.li
https://www.ingbau.li/