1.0 Zi-Wohnung - 1.OG
Eckdaten
Adresse
Dammweg 4
9490 Vaduz
9490 Vaduz
Referenz-Nr.
1676
Zimmer
1
Wohnfläche
32 m²
Verfügbarkeit
ab 01.06.2026
Preise pro Monat
Bruttomiete
CHF 820.00
Nettomiete
CHF 680.00
Nebenkosten
CHF 140.00 (akonto)
Miete Parkplatz
CHF 50.00
Beschreibung
Das Mehrfamilienhaus steht an leicht erhöhter Lage in Vaduz. In wenigen Gehminuten befinden sich diverse Einkaufsmöglichkeiten sowie die öffentlichen Verkehrsmittel.
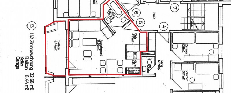
Im Eingangsbereich befindet sich eine Garderobe sowie die Nasszelle. Die gesamte Wohnung wurde mit hellem Parkett ausgestattet und verleiht der Wohnung eine gmütliche Atmosphäre. Die Küche sowie das Badezimmer wurden mit hellen Materialien ausgestattet. Vom Balkon aus geniessen Sie den Blick ins Grüne.
Ausstattung:
Wenn Sie mehr über dieses Objekt erfahren möchten, rufen Sie uns an. Wir freuen uns auf Sie.
Im Eingangsbereich befindet sich eine Garderobe sowie die Nasszelle. Die gesamte Wohnung wurde mit hellem Parkett ausgestattet und verleiht der Wohnung eine gmütliche Atmosphäre. Die Küche sowie das Badezimmer wurden mit hellen Materialien ausgestattet. Vom Balkon aus geniessen Sie den Blick ins Grüne.
Ausstattung:
- Renovierte Kleinwohnung
- Helle, moderne Küche
- Badezimmer mit Badewanne/WC
- Feinsteinzeugplatten
- Parkett
- Balkon mit Aussicht ins Grüne
- Kellerabteil
- Waschmaschine/Wäschetrockner zur Mitbenützung im UG
- Lift
Wenn Sie mehr über dieses Objekt erfahren möchten, rufen Sie uns an. Wir freuen uns auf Sie.
Detaillierte Informationen
Stockwerk
1. Stock
Bodenbeläge
Parkett & Steinböden
Anzahl Bad/WC
1
Weitere Räume
Kellerabteil
Geschirrspülmaschine
Heizung
Fernwärme
Balkon/Terrasse
Umgebung
Einkaufen
ca. 100 m
Öff. Verkehr
ca. 100 m
Autobahnanschluss
ca. 1 km
Besichtigungskontakt
Ing. Bau AG · Kompetenz in ImmobilienT +423 375 80 80
E vermietung@ingbau.li
Anbieter
Ing. Bau AG · Kompetenz in ImmobilienRätikonstrasse 13
9490 Vaduz
T +423 375 80 80 (Geschäft)
vermietung@ingbau.li
https://www.ingbau.li/