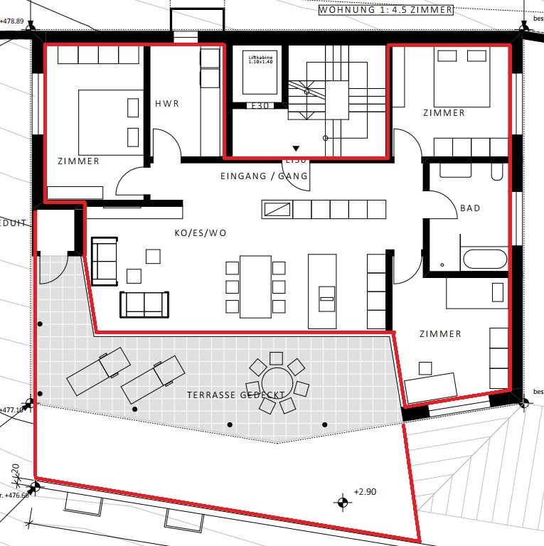
4.5 Zi-Wohnung - 1.OG - Top Aussichtslage
Eckdaten
Adresse
Landammannstrasse 1
9492 Eschen
9492 Eschen
Referenz-Nr.
1776
Zimmer
4,5
Wohnfläche
118 m²
Verfügbarkeit
ab 01.07.2026
Preise pro Monat
Bruttomiete
CHF 2'900.00
Nettomiete
CHF 2'600.00
Nebenkosten
CHF 300.00 (akonto)
Miete Garage
CHF 100.00
Beschreibung
Diese moderne Wohnung in Eschen überzeugt durch ihre exklusive Lage mit atemberaubender Aussicht. Zwei zeitgemäss gestaltete Häuser beherbergen insgesamt 8 Mietwohnungen, die sich harmonisch in die malerische Umgebung einfügen. Die Architektur verbindet zeitgenössisches Design mit hoher Funktionalität und wurde gezielt darauf ausgerichtet, die beeindruckende Panoramaaussicht optimal zur Geltung zu bringen.
Die offene und helle Küche bildet das Herzstück des Wohnbereichs und ist mit einem Induktionsherd, einem Bora-Dampfabzug, einem Backofen inkl. Steamer, einem Geschirrspüler sowie einem Kühlschrank ausgestattet. Das Badezimmer verfügt sowohl über eine Badewanne als auch über eine komfortable Dusche. Die Wohnungseingangstüren aus edler Eiche (Massivholz) sowie das hochwertige Eichenparkett, das sich durch den gesamten Wohnbereich und die grosszügigen Schlafzimmer zieht, schaffen eine warme und einladende Wohnatmosphäre. Grosszügige Fensterfronten sorgen für viel Tageslicht und eröffnen einen beeindruckenden Blick auf die umliegende Landschaft.
Ein praktischer Hauswirtschaftsraum bietet zusätzlichen Stauraum für Haushaltsutensilien und Vorräte. Die sonnige Terrasse lädt zum Verweilen im Freien ein und begeistert mit einem Rundumblick sowie einer Panoramaaussicht, die zum Entspannen und Geniessen einlädt. Eine Fussbodenheizung in der gesamten Wohnung sorgt ganzjährig für angenehmen Wohnkomfort.
Die hauseigene Photovoltaikanlage ermöglicht den nachhaltigen Eigenverbrauch des erzeugten Stroms (ZEV – Zusammenschluss zum Eigenverbrauch). Ein Lift gewährleistet einen bequemen Zugang zur Wohnung und bietet zusätzlichen Komfort für alle Altersgruppen. Ein separates Kellerabteil schafft weiteren Stauraum für persönliche Gegenstände oder Sportausrüstung. Primarschule und Kindergarten befinden sich in unmittelbarer Nähe und sind über eine verkehrsarme Nebenstrasse sicher erreichbar.
Diese attraktive Wohnung vereint stilvolles Wohnen, hochwertige Ausstattung und eine privilegierte Lage – ideal für alle, die Wert auf Qualität, Komfort und ein besonderes Wohnumfeld legen.
Ausstattung:
Wenn Sie mehr über dieses Objekt erfahren möchten, rufen Sie uns an. Wir freuen uns auf Sie.
Die offene und helle Küche bildet das Herzstück des Wohnbereichs und ist mit einem Induktionsherd, einem Bora-Dampfabzug, einem Backofen inkl. Steamer, einem Geschirrspüler sowie einem Kühlschrank ausgestattet. Das Badezimmer verfügt sowohl über eine Badewanne als auch über eine komfortable Dusche. Die Wohnungseingangstüren aus edler Eiche (Massivholz) sowie das hochwertige Eichenparkett, das sich durch den gesamten Wohnbereich und die grosszügigen Schlafzimmer zieht, schaffen eine warme und einladende Wohnatmosphäre. Grosszügige Fensterfronten sorgen für viel Tageslicht und eröffnen einen beeindruckenden Blick auf die umliegende Landschaft.
Ein praktischer Hauswirtschaftsraum bietet zusätzlichen Stauraum für Haushaltsutensilien und Vorräte. Die sonnige Terrasse lädt zum Verweilen im Freien ein und begeistert mit einem Rundumblick sowie einer Panoramaaussicht, die zum Entspannen und Geniessen einlädt. Eine Fussbodenheizung in der gesamten Wohnung sorgt ganzjährig für angenehmen Wohnkomfort.
Die hauseigene Photovoltaikanlage ermöglicht den nachhaltigen Eigenverbrauch des erzeugten Stroms (ZEV – Zusammenschluss zum Eigenverbrauch). Ein Lift gewährleistet einen bequemen Zugang zur Wohnung und bietet zusätzlichen Komfort für alle Altersgruppen. Ein separates Kellerabteil schafft weiteren Stauraum für persönliche Gegenstände oder Sportausrüstung. Primarschule und Kindergarten befinden sich in unmittelbarer Nähe und sind über eine verkehrsarme Nebenstrasse sicher erreichbar.
Diese attraktive Wohnung vereint stilvolles Wohnen, hochwertige Ausstattung und eine privilegierte Lage – ideal für alle, die Wert auf Qualität, Komfort und ein besonderes Wohnumfeld legen.
Ausstattung:
- Offene, helle Küche (Eigentumsstandard)
- Badezimmer mit Badewanne/Dusche
- Eichenparkett & Steinböden
- Fensterfronten
- Grosszügiger Hauswirtschaftsraum
- Sonnige Terrasse inkl. Reduit und Wasseranschluss
- Rundumblick/Panoramaaussicht
- Lift
- Kellerabteil
- Fahrradabstellbereich
- Wärmepumpe in Kombination Photovoltaikanlage
- Fussbodenheizung
- Stromnutzung über Photovoltaikanlage
Wenn Sie mehr über dieses Objekt erfahren möchten, rufen Sie uns an. Wir freuen uns auf Sie.
Detaillierte Informationen
Baujahr
2024
Stockwerk
1. Stock
Rollstuhlgängig
Haustiere erlaubt
Bodenbeläge
Parkett & Steinböden
Anzahl Bad/Dusche/WC
1
Erstbezug
Zustand
neu
Weitere Räume
Grosszügiger Hauswirtschaft-raum, Reduit auf Balkon/Ter-rasse, separater Kellerraum, Fahrradabstellbereich
Internetanschluss
Glasfaser
Sep. Tumbler
Sep. Waschmaschine
Geschirrspülmaschine
Kücheneinrichtung
Eigentumsstandard
Heizung
Wärmepumpe
Ladestation E-Auto
Ladestation E-Velo
Lift
Gartensitzplatz
Kinderfreundlich
Umgebung
Einkaufen
ca. 500 m
Öff. Verkehr
ca. 500 m
Autobahnanschluss
ca. 3 km
Kindergarten
ca. 500 m
Primarschule
ca. 500 m
Besichtigungskontakt
Ing. Bau AG · Kompetenz in ImmobilienT +423 375 80 80
E vermietung@ingbau.li
Anbieter
Ing. Bau AG · Kompetenz in ImmobilienRätikonstrasse 13
9490 Vaduz
T +423 375 80 80 (Geschäft)
vermietung@ingbau.li
https://www.ingbau.li/